一、柱
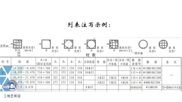
1、框架柱(KZ)
2、转换柱(ZHZ)
3、芯柱(XZ)
4、梁上柱(LZ)
5、剪力墙上柱(QZ)
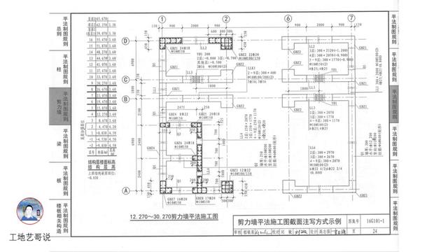
二、剪力墙
6、约束边缘构件(YBZ),7、构造边缘构件(GBZ),8、非边缘暗柱(AZ)
9、扶壁柱(FBZ)
10、连梁(LL)
11、连梁对角暗撑LL(JC)
12、连梁交叉斜筋LL(JX)
13、连梁集中对角斜筋LL(DX)
14、连梁(跨高比小于5)LLk
15、暗梁(AL)
16、边框梁(BKL)
17、剪力墙身(Q)
18、地下室外墙(DWQ)
19、矩形洞口JD
20、圆形洞口YD
三、梁
21、楼层框架梁KL
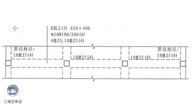
22、楼层框架扁梁KBL
23、屋面框架梁WKL
24、框支梁KZL
25、托柱转换梁TZL
26、非框架梁(铰接)L
27、非框架梁(刚接)Lg
28、悬挑梁XL
29、井字梁(铰接)JZL
30、井字梁(刚接)JZLg
31、框架扁梁节点核心区KBH
四、板
32、有梁楼面板LB
33、有梁屋面板WB
34、悬挑板XB
35、无梁楼盖柱上板带(ZSB),36、无梁楼盖跨中板带KZB
37、无梁楼盖暗梁AL
38、纵筋加强带JQD
39、后浇带HJD
40、柱帽ZMx
41、局部升降板SJB
42、板加腋JY
43、板开洞BD
44、板翻边FB
45、角部加强筋Crs
46、悬挑板阴角附加筋Cis
47、悬挑板阳角放射筋Ces
48、抗冲切箍筋Rh
49、抗冲切弯起筋(Rb)
五、楼梯
50、一跑梯板AT
51、有低端平板的一跑梯板(BT)
52、有高端平板的一跑梯板(CT)
53、有低端和高端平板的一跑梯板DT
54、有中位平板的一跑梯板ET
55、有层间和楼层平台板的双跑楼梯(全部平板三边支承)FT
56、有层间和楼层平台板的双跑楼梯(层间平台板三边支承,另一端的梯板段单边支承)GT
57、一跑楼梯(低端楼梯梁上设滑动支座)ATa
58、一跑楼梯(低端楼梯梁挑板上设滑动支座)ATb
59、一跑楼梯(参与框架结构整体抗震计算)ATc
60、有高端平板的一跑梯板(低端梯梁上设滑动支座)CTa
61、有高端平板的一跑梯板(低端梯梁挑板上设滑动支座)CTb
62、梯梁TL,63、平台板PTB,64、梯柱TZ
六、基础
65、普通阶形独立基础DJj
66、普通坡形独立基础DJp
67、杯口阶形独立基础BJj
68、杯口坡形独立基础BJp
69、基础梁JL
70、条形基础坡形底板TJBp
71、条形基础阶形底板TJBj
72、梁板式筏板基础主梁(柱下)JL
73、梁板式筏板基础次梁JCL
74、梁板式筏板基础平板LPB
75、平板式筏板基础柱下板带ZXB
76、平板式筏板基础跨中板带KZB
77、平板式筏板基础平板BPB
78、灌注桩GZH
79、扩底灌注桩GZHk
80、独立阶形承台CTj
81、独立坡形承台CTp
82、承台梁CTL
83、基础连系梁JLL
84、基础后浇带HJD
85、上柱墩SZD
86、下柱墩XZD
87、基坑(沟)JK
88、窗井墙CJQ
89、防水板FBPB
