根据历次全国屋面渗漏调查,细部构造渗漏占全部渗漏的80%以上,做好屋面细部构造防水至关重要!下面分享的创优实例工程,在前期策划中,组织施工单位、监理进行防水工程专项策划,重点考虑防水层材料、厚度、易漏部位的做法,根据图集、规范并结合项目具体情况形成了15个防水节点做法,值得工程朋友们参考借鉴!
本工程屋面防水做法
工程示例
聚氨酯防水涂膜
卷材防水层
分格缝设置
透气帽设置馒头包
防水施工前细部处理
女儿墙及屋顶机房防水翻边
设备基础防水翻边
风井防水翻边
保温层透气管
本工程拟定管控要点
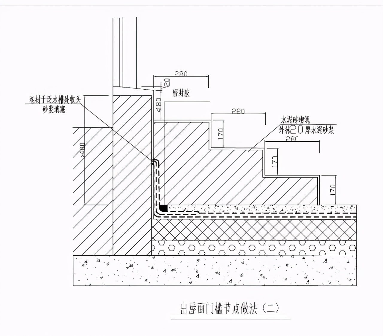
项目部总结的15个防水节点做法
1
2
3
4
5
6
7
8
9
10
11
12
13
14
15
