


挂篮是一个能沿梁顶滑动或滚动的承重构架。
挂篮锚固悬挂在已施工梁段上,为下一节段施工作业提供空中平台。完成一个节段施工后,挂篮即可前移并固定,进行下一节段的施工,如此循环直至悬臂灌注完成。
挂篮主要由承重结构、吊挂系统、走行系统与模板系统等组成 ,各部自成体系,相互独立且又相互联系。

多用于斜拉桥施工,因为节段长度较大,一般挂篮难以达到悬臂刚度。有现成的斜拉索可以利用,作为挂篮的前支点。



三角形挂篮

菱形挂篮


弓弦式挂篮

平行桁架式挂篮

前支点挂篮(多用于斜拉桥施工,因为节段长度较大,一般挂篮难以达到悬臂刚度。有现成的斜拉索可以利用,作为挂篮的前支点。)



✄行走系统
挂篮行走时的走道(滑道、轨道);
挂篮行走的动力装置,有液压、机械两种;
滑道与主梁之间的支腿、滑板、滚轮等。

✄锚固系统
挂篮平衡稳定的关键之处;
后锚固:保证行走、混凝土浇筑各工况下挂篮的倾覆稳定。
后下锚固:混凝土浇筑时,后下横梁传给已浇梁段底板的承力锚固。
包括锚杆、压轮、连接件、升降千斤顶等。

✄主结构系统
为挂篮悬浇的主要承重结构
承担由底篮、后锚固传来的所有荷载;结构形式多种多样。
包括前、后上横梁、横向联结等。

✄悬吊系统
挂篮行走时悬挂底篮的承重构件;
混凝土浇筑时传递底篮的荷载;
通常有吊杆、吊带两种形式,以销接或连接器调整高度以适应不同的梁底标高。

✄底篮系统
直接承受悬浇梁段的重力荷载;
承受模板等其他附加荷载;
由前后横梁、底模纵梁、前后下工作平台组成。
前后横梁、底模纵梁可根据具体情况为型钢式或桁架式。

✄模板系统
悬浇梁段的底模板、内外模板及端模。

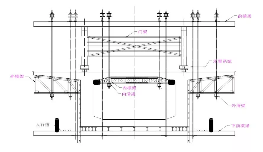
✄挂篮系统图示注释




★挂篮设计原则
自重轻、结构简单、受力明确、坚固稳定、变形小、前移和装拆方便、具有较强的可重复利用性。

★设计参数要求
挂篮与梁段混凝土质量比值应控制在0.3-0.7之间,或设计限重内;
允许最大变形(包括吊带变形):≤20mm;
施工行走时的抗倾覆安全系数:≥ 2;
自锚安全系数:≥ 2 ;
★设计其他要求
挂篮重量应控制在设计要求的重量范围之内。
主桁片的数量应与箱梁的腹板对应。主桁位置应作用在箱梁的腹板位置或附近。
吊带与下前横梁联结宜设双向铰设计。
挂篮主要受力点处要进行局部加强,尤其在承重系统位置。




❖挂篮选型
挂篮是悬臂施工中的主要设备,按结构形式可分为桁架式、斜拉式挂篮、型钢式及混合式挂篮四种。根据混凝土悬臂施工工艺要求综合比较各种形式挂篮特点、重量等,推荐采用菱形挂篮。


❖设计荷载组合
主要荷载:箱梁重量、挂篮自重、施工荷载、风荷载 。
工况一荷载组合(最重块段混凝土灌筑):混凝土重量(最大块体重量)+动力附加荷载+混凝土偏载+挂篮自重+人群和机具荷载 。
注:所有构件均检。
工况二荷载组合(挂篮行走):挂篮自重+冲击附加荷载。
注:内、外滑梁及轨道部分必检。
❖检算步骤
确定挂篮结构形式
确定荷载
拟定挂篮结构(包括构件长度及断面形式)
建模计算
修正挂篮结构断面形式,并重新检算
联接及局部检算
❖检算内容
强度:所有构件及其联结、与既有节段的锚固
刚度:所有构件
稳定性:横、纵、竖向整体稳定性
➤分部计算时变形的叠加
❖挂篮结构材料
主要材料采用Q235型钢及钢板,吊带采用16Mn,吊带用销轴采用40Cr,吊杆采用Φ32精轧螺纹钢。
