地下室防水质量直接关系到建筑物的使用功能和使用寿命,其重要性不言而喻。地下室防水施工主要包括①底板、②外墙、③顶板三大块内容,本文是中建三局在依据《地下防水工程质量验收规范》、《地下工程防水技术规范》、《地下建筑防水构造》等规范的基础上,基于项目实例,对地下室防水施工技术进行的全面解读,值得大家参考学习并付诸实践,共同提升工程质量。
室防水常规做法
(一)
底板防水做法

(二)
外墙防水做法

(三)
顶板防水做法

(一)底板防水
工艺流程:
基面处理→涂布基层处理剂→细部增强→铺贴卷材→接缝处理→保护层
分区分块施工,避免基底暴露时间长。
二次收光,打磨机磨光。

基层阴阳角应做成圆弧或45°坡角,其尺寸应根据卷材品种确定。

涂刷基层处理剂之前将基层清理干净,涂刷时要求均匀,不露底。

GB50208《地下防水工程质量验收规范》:在转角处、变形缝、施工缝、后浇带,穿墙管等部位应铺贴卷材加强层,加强层宽度不应小于500mm。
建议电梯井、积水坑斜面的防水卷材采用带有砂粒的,以便于防水保护层的施工。


工艺说明:
平面阴阳角、三面阴阳角附加层卷材按上图所示形状的下料和裁剪。附加层卷材铺贴时,不要拉紧,要自然松铺,无皱折即可。


从底板折向立面的卷材与永久保护墙的接触部位,采用空铺法施工。2层卷材接搓部位甩出搭接长度300mm、500mm,顶端临时用石灰砂浆砌四皮砖固定。待外墙外贴防水卷材时,分层错搓接缝。

GB50208《地下防水工程质量验收规范》:
桩头顶面和侧面祼露处应涂刷水泥基渗透结晶型防水涂料,并延伸至结构底板垫层150mm处;桩头周围300mm范围内应抺聚合物水泥防水砂浆过渡层。
结构底板防水层应做在聚合物水泥防水砂浆过渡层上并延伸至桩头侧壁,其与桩头侧壁接缝处应采用密封材料嵌填。
桩头的受力钢筋根部应采用遇水膨胀止水条或止水胶,并应采取保护措施。



· 桩头防水节点

施工现场实例
施工要点:
1、桩顶剔凿至混凝土密实处,并应清洗干净。
2、桩头顶面和侧面祼露处应涂刷水泥基渗透结晶型防水涂料,并延伸至结构底板垫层150mm处。
3、桩头周围300mm范围内应抺聚合物水泥防水砂浆过渡层。
4、结构底板防水层应做在聚合物水泥防水砂浆过渡层上并延伸至桩头侧壁,其与桩头侧壁接缝处应采用密封材料嵌填。
5、桩头的受力钢筋根部应采用遇水膨胀止水条或止水胶。
预留槽口应采用相应规格塑料条预埋抽条而成;预留槽口、钢筋出桩头部分橡胶膨胀止水条、嵌槽防水油膏等应进行专项工序检查;水泥基渗透结晶涂刷的防水涂层涂刷范围应按图示要求,厚度应≥1.5㎜。
GB50208《地下防水工程质量验收规范》:防水卷材的搭接宽度应符合下表的要求。铺贴双层卷材时,上下两层和相邻两幅卷材的接缝应错开1/3~1/2 幅宽,且两层卷材不得相互垂直铺贴。


工艺说明:
1、卷材施工时,采用汽油喷灯或专用火焰喷枪直接加热基层与卷材交接处,应在卷材的沥青刚刚熔化时进行滚动铺设,用力应均匀、不窝气。
2、随时注意卷材的平整顺直和搭接的宽度,其后跟随一人用棉纱团等从中间向两边抹压卷材,排出卷材下面的空气,并用刮刀将溢出的热熔胶刮压接边缝,另一人用压辊压实卷材,使之粘结牢固,表面平展,无皱折现象。

热熔法施工工艺

热熔标准:沥青浆外漏为准

现场拉扒试验

基层粘接标准
GB50208《地下防水工程质量验收规范》:涂料防水层的平均厚度应符合设计要求,最小厚度不得低于设计厚度的90%。
检验方法:用针测法检查。
条文说明:将原规范的不得小于设计厚度80%提高到90%。建议按每处10㎡抽取5个点,两点间距不小于2.0m,计算5点的平均值并报告最小值。

JS复合涂料(聚合物水泥防水涂料)



GB50108《地下工程防水技术规范》:防水混凝土拌合物在运输后如出现离析,必须进行二次搅拌。当坍落度损失后不能满足施工要求时,应加入原水胶比的水泥浆或掺加同品种的减水剂进行搅拌,严禁直接加水。
1、混凝土的二次振捣,其实是指在混凝土浇筑后的适当时间,一般混凝土初凝前1h振捣效果最佳。
2、混凝土的二次振捣有很多优点,不仅可以提高混凝土的强度,或在保证强度的前提下节约水泥的用量,而且可以增加混凝土的密实度,提高防渗性,消除混凝土由于沉陷产生的裂纹和细缝。据有关实验表明,二次振捣,可使钢筋握裹力增加1/3,28d强度增加10%~15%,在保持强度不变的前提下节约水泥用量15%左右。

· 筏板后浇带防水节点
后浇带、加强带部位,在垫层上作预留沉渣沟或槽。

施工要点:
1、后浇带应在其两侧混凝土龄期达到42d后再施工。
2、后浇带中间安装止水钢板。
3、浇带两侧的接缝表面应先清理干净,再涂刷混凝土界面处理剂或水泥基渗透结晶型防水涂料。
4、后浇带混凝土应一次浇筑,不得留施工缝;混凝土浇筑后应及时养护,养护时间不得少于28d。
5、地下室底板要给予合理养护时间,采取合理的养护措施(覆盖、浇水、养水、内部降温)。


二)外墙防水
外墙施工程序与方法:按墙体结构与卷材施工的先后顺序可分为外贴法和内贴法两种程序。
(1)外贴法: 墙体结构→防水→保护
特点:结构及防水层质量易检查,可靠性强;需肥槽宽,工期长。
(2)内贴法:垫层、保护墙→防水层→底板及结构墙
特点:槽宽小,省模板;损坏无察觉,可靠性差,内侧模板不好固定。用于场地小,无法采用外贴法的情况下。

外贴法防水构造

内贴法防水构造
· SBS卷材防水施工工艺
施工工法灵活:
SBS卷材防水系统的施工安装方法有:满粘法、条粘法、点粘法、空铺法等,当辅助采用机械固定时,系统性能更加优越。地下工程的底板部分采用空铺,基层潮湿无影响,可极大提高施工速度,缩短施工工期。侧墙部分采用满粘施工,可取得最佳的刚柔无间隙结合的防水效果。
使用环境情况:
北方地区气候干燥,温差较大,钢筋混凝土的蒸发干燥速度极快,现浇混凝土结构微细裂缝普遍存在;SBS卷材防水系统因其高强胎体存在,能够有效避免结构变形引起的防水层“零延伸断裂”现象。并且SBS卷材在-10℃气温下亦能施工,材料在-50℃仍能保持防水功能。
· 外侧增设钢筋网片
地下室外墙外侧的钢筋混凝土保护层厚度一般较大,容易产生干缩裂缝,给外墙渗水带来隐患,为此,可与设计协商在外墙外侧增设一道ф4@150的钢筋网片(见下图),防裂效果明显。

· 止水钢板处节点做法(焊接)


注意箍筋节点处理
· 水平施工缝防水节点


施工要点:
1、浇筑混凝土前,应将其表面浮浆和杂物清除,然后铺设净浆,并及时浇筑混凝土。
2、墙体水平施工缝应留设在高出底板表面不小于300mm的墙体上。
3、止水钢板应加工成“〔”状,钢筋不宜穿止水钢板,采取补焊的方法无法保证质量。有箍筋的构件,箍筋在此处宜采取将箍筋断开,弯折10d以上与止水钢板焊接的工艺方法。
4、止水钢板接头必须采用搭接焊接,搭接长度应≥50mm,焊接必须为4个方向焊接。
注:尽量用钢板止水带替代膨胀止水条和橡胶止水带。
· 穿墙管、盒防水节点


施工要点:
1、固定式穿墙管应加焊止水环或环绕遇水膨胀止水圈,并作好防腐处理;穿墙管应在主体结构迎水面预留凹槽,槽内应用密封材料嵌填密实。
2、套管式穿墙管的套管与止水环及翼环应连续满焊,并作好防腐处理;穿墙管与套管之间应用密封材料和橡胶密封圈进行密封处理,并采用法兰盘及螺栓进行固定。
3、相邻穿墙管间的间距应大于300mm。
GB50208《地下防水工程质量验收规范》:防水混凝土结构的变形缝、施工缝、后浇带、穿墙管、埋设件等设置和构造必须符合设计要求。
条文说明:墙体最低水平施工缝应高出底板表面不小于300mm;穿墙管道应在浇筑混凝土前预埋。

止水钢板节点图
GB50108《地下工程防水技术规范》:施工缝的施工应符合下列规定:
1、水平施工缝浇筑混凝土前,应将其表面浮浆和杂物清除,然后铺设净桨或涂刷混凝土界面处理剂、水泥基渗透结晶型防水涂料等材料,再铺30-50mm厚的1:1水泥砂浆,并应及时浇筑混凝土。
2、垂直施工缝浇筑混凝土前,应将其表面清理干净,再涂刷混凝土界面处理剂或水泥基渗透结晶型防水涂料,并应及时浇筑混凝土。

施工缝凿毛处理
· 变形缝防水节点
工程上有“十缝九漏”的说法:
渗漏现象一:水沿着止水带的周边渗出;
渗漏现象二:水沿着止水带的周边不密实的砼渗出。

施工要点:
1、采用上图5.5.2-1的防水构造时,在接头混凝土施工前应将先浇混凝土端部表面凿毛,露出钢筋或预埋的钢筋接驳器钢板,与待浇混凝土部位的钢筋焊接或连接好后再行浇筑。
2、预留通道接头处的最大沉降差值不得大于30mm。
2
施工前,按前述对防水基层进行检查验收,不符要求相关班组返工整改。
对基层上的浮灰、建渣、杂物和积水进行清理清除,满足施工条件。
基层清理后,对基层裂缝、孔洞等缺陷用聚合物水泥砂浆摸平,清扫干净;基层含水率达到要求。


· 止水螺杆处理节点

施工要点:
1、凿出20mm深的喇叭口或提前用小木块预留。
2、刷防锈漆。
· 新型止水螺杆处理节点


1、涂刷或喷涂基层处理剂前要检查找平层的质量和干燥程度并加以清扫。
2、用铲刀将基层表面的突出物、砂浆疙瘩等异物铲除,用扫帚、毛刷清扫基层表面特别是节点部位的尘土及杂物等。
3、基层处理剂涂刷后宜在当天铺完防水层,但也要根据情况灵活确定。如多雨季节、工期紧张的情况下,可先涂好全部基层处理剂后再铺贴卷材,这样可防止雨水渗入找平层,而且基层处理剂干燥后的表面水分蒸发较快。一般要干燥4h以上,方可进行下道工序施工。

1、在需要增加附加层的部位,施工缝、变形缝、后浇带、穿墙管等部位必须铺设防水加强层。依据工程实际情况可先作亦可后作。
2、外墙铺贴从下向上铺贴,铺贴时采取三个人配合作业;卷材展开对准基准线试铺。


GB50108《地下工程防水技术规范》:采用外防外贴法铺贴卷材防水层时,应符合下列规定:
临时性保护墙宜采用石灰砂浆砌筑,内表面宜做找平层。
混凝土结构完成,铺贴立面卷材时,应先将接槎部位的各层卷材揭开,并应将其表面清理干净,如卷材有局部损伤,应及时进行修补;卷材接槎的搭接长度,高聚物改性沥青类卷材应为150mm,合成高分子类卷材应为100mm;当使用两层卷材时,卷材应错槎接缝,上层卷材应盖过下层卷材。卷材防水层甩槎、接槎构造见下图。

· 卷材防水层封边(1)

工艺说明:
防水收口位置设置在距室外散水下150mm处,浇筑墙体混凝土时应预留凹槽,防水末端先用3㎜×25㎜,金属压条钢钉固定(间距500㎜再用密封膏封闭)。
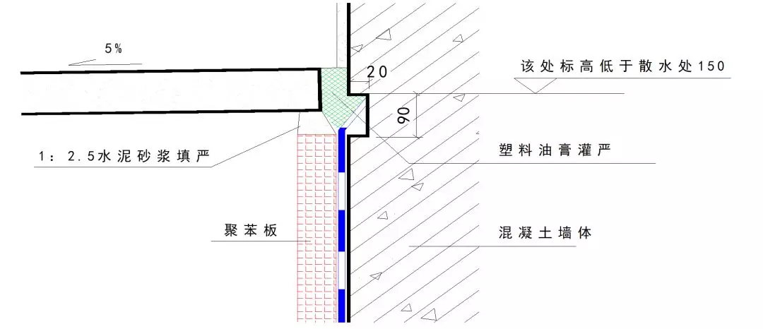
· 卷材防水层封边(2)

工艺说明:
防水收口位置设置在距室外散水下150mm处,浇筑墙体混凝土时应预留凹槽,防水卷材施工时,将防水卷材端部压在凹槽中,待室外散水施工完再用密封膏将凹槽及散水与外墙缝隙灌严。
外墙防水聚苯板保护层安装要求:粘结牢固,覆盖全面,安装高度要高于回填完成面1-2米。

· 地下室外墙苯板保护节点

6


· 外墙后浇带封闭
外墙后浇带做封板处理并抹好圆角,可提前进行外墙铺贴并回填土。

地下室剪力墙后浇带是应力集中区域,极易导致新老混凝土接触面产生裂缝,是漏水高发区,若将该处剪力墙进行加厚处理,见下图,防渗漏效果较好。


砖砌挡墙
三)顶板防水




· 采光天井等防水节点

1、卷材手收头易采用金属压条定压,凹槽密封材料封堵,根部直径500mm范围内,找平层应抹出高度不小于30mm的圆台;且在四周预留20mm*20mm的凹槽,密封材料嵌前严密。
2、阴阳角应做成R=100mm的圆弧形。
3、按要求粘贴变形缝、施工缝、阴阳角、所有转角、平立面交界处等处的卷材附加防水层。
4、没有在压条与防水卷材结合部打建筑密封膏,长时间极易造成防水卷材收边处开口,从而造成渗漏。
· 顶板临时道路加固节点

1、顶板加载部位(临时道路、堆场等)必须经计算核算。
2、解决方式:提前深化设计,增加配筋;选用消防车道;回顶。
· 散水节点

1、散水坡、台阶、明沟本身按≤6m长度(总长度均分)留沉降缝。
2、外墙阴阳角位按450角留沉降缝。
3、散水坡与台阶交接处留沉降缝分隔。
