源自丨沈阳市城乡建设局、苏州市住建局、烟台市住建局、建筑管理
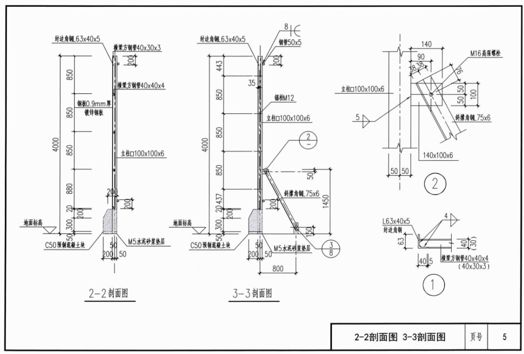
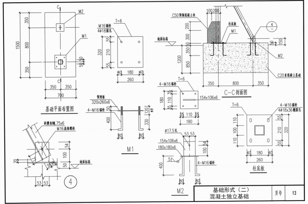
整理丨度川管理研究部 建管君: 本围挡为成品围挡,总高约3.75m,围挡面板由三块0.8m镀锌板组成,每块面板高度为1.25m。 早在几年前,烟台《关于加强全市建设工程施工现场围挡设置管理的通知》(烟建质安[2017]7号)要求: 房屋建筑施工工地主干道两侧围挡高度不低于4米,次干道两侧围挡不得低于2.5米,其他区域不得低于1.8米。 各地区建设局、行政综合执法局、建设、施工、监理单位: 为进一步提升我市建设工程文明施工管理水平,规范建设工程施工现场围挡设置,改善和美化城市环境,解决施工现场四周围挡不达标、不统一、不精美等问题,制定了沈阳市建设工程施工现场围挡设置导则及图集,现予以发布,请遵照执行。 附件:1.《沈阳市建设工程施工现场围挡设置导则》.docx 2.关于印发沈阳市建设工程施工现场围挡设置导则及图集的通知.pdf 沈阳市城乡建设局 沈阳市城市管理综合行政执法局 2021年6月17日 附件1 沈阳市建设工程施工现场围挡设置导则 (试行) 1.建设工程施工现场必须设置连续封闭的围挡(符合《沈阳市建设工程施工现场围挡标准图集》要求),施工单位应在围挡外侧悬挂公示牌和扬尘治理目标牌,严禁围挡不严或敞开式施工,保证围挡坚固、整洁、美观、无破损。 2.房屋建筑工地施工现场应采用“固定式围挡”。围挡总高度不得低于3m,分上下两部分,围挡上部为不得低于2.5m高钢结构(0.9mm光面钢板+钢骨架+斜撑),下部为0.5m高挡墙(砖砌或预制块)。外挂仿真绿植或单一颜色户外喷绘布,在围挡外侧挡墙上方部分居中加设公益广告(公益广告尺寸为:1.2m*2.0m)。在不挤压公益广告原则上可设置单位或项目名称、公司标志等图案。临街围挡下部底座粉刷黄黑相间警示条(宽度20cm、倾斜角60度)。一级马路沿街段应设置照明灯,依照路灯照明时间开启。 3.地铁、管廊施工及道路、桥梁等市政工程工期在3个月以上的施工现场应采用“固定式围挡”。围挡总高度不得低于2.5m,分上下两部分,围挡上部为不得低于2m高钢结构(0.9mm压纹钢板+钢骨架+斜撑),下部为0.5m高挡墙(砖砌或预制块),在围挡外侧挡墙上方部分两立柱间蓝色区域可居中悬挂公益广告牌(2.5m高围挡公益广告尺寸为:1.0m*1.7m),衬板厚度不小于5mm沿街段应设置爆闪灯、照明灯及轮廓标。围挡上部压纹钢板影响美观时可外挂仿真绿植或单一颜色户外喷绘布。 4.地铁、道路、桥梁等市政工程及给水、排水、燃气、供暖管线施工、临街既有建筑装饰装修工程等工期在三个月以内的应采用“移动式围挡”,分为钢骨架加压纹钢板、成品移动式(镀锌板材可移动式)和注水式。钢骨架加压纹钢板“移动式围挡”总高度不得低于2m,根据工程类型(具体见第10条)在围挡外侧挡墙上方部分两立柱间蓝色区域居中悬挂公益广告牌(公益广告尺寸为:1.0m*1.7m)。成品移动式(镀锌板材可移动式)围挡不得设有招商、招租电话。围挡要牢固平整美观,临街处需设置防撞和爆闪装置。 5.停缓建工程及拆除工程施工现场围挡应按照工程性质及工期采用相应类型的围挡。 6.临时维修、维护、抢修、抢建工程应设置应急式临时围挡,每块围挡高度1.2m、宽度1.8m,设置警示灯。夜间施工时架起围挡,土方挖掘后及时清除。未完成坑槽需及时用20mm厚钢板覆盖,确保道路通畅。 7.工地大门应美观靓化,设置灯箱式门头,门头应有企 业形象标志和承建工程名称,各种公示牌应美观统一,设置在醒目位置。 8.建设工程室外配套工程施工结束前,不应拆除施工现场围挡。如因施工需要必须拆除围挡时,应设置移动式围挡。 9.围挡应当每日清洗一次,户外喷绘布出现破损、退色应及时更换,仿真绿篱围挡出现卷边、破损时应及时更换。 10.房屋建筑工地、工期三个月以上的市政工程(含地铁)及工期三个月以内的需对围挡进行二次改移的地铁工程、快速路工程、桥梁和隧道工程的施工现场围挡根据相关规定设置公益宣传广告,应保持完整、清洁、无破损,未经批准,不得擅自设置商业广告。施工现场围挡未采用图集所示尺寸时,在保持样式、布局不变的前提下,从美学角度重新设计公益广告尺寸。其他各类施工工地现场不得设置任何形式的广告。 11.《沈阳市建设工程施工现场围挡标准图集》中围挡、大门结构部分设计供参考,可根据施工场地实际情况由建设方另行委托设计,标准不得低于图集要求。围挡设置的公益广告是指传播社会主义核心价值观,倡导良好道德风尚,促进公民文明素质和社会文明程度提高,维护国家和社会公共利益的非盈利性广告。 12.2021年7月1日后所有新开工的建设工程施工现场围挡按新版《沈阳市建设工程施工现场围挡标准图集》设置。




























以上内容来源于网络收集整理,如有侵权请联系客服