文章来源:筑龙路桥市政
素材来源于工程论坛
版权归原作者所有
预制小箱梁由于具有较大的截面抗扭强度,抗弯强度,而且价格便宜,施工速度快,在国内外得到了十分迅速的发展和广泛的应用。今天就和大家一起来学习如何做到预制小箱梁的标准化施工?
一、施工方法及工艺流程
1.1、工艺原理及工艺流程
箱形梁的预制是在现场制作的专用胎模上立式预制;
首先在胎模上绑扎加工成形的钢筋骨架,设置用于形成预应力筋孔道的波纹管,然后安装梁体的专用钢模板,浇筑混凝土并进行养护,待混凝土达到一定强度后,拆除侧模板,并继续养护,当混凝土强度达到设计要求后进行预应力穿索,并按顺序对预应力筋进行张拉、锚固,然后进行灌浆和封锚等工序,完成梁体的预制。

1.2、制梁台座设置
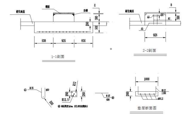
25m箱梁底座两端扩大基础为300*300*50cm并安装两层钢筋网片(因箱梁张拉后承受集中力),中段浇筑20㎝厚C25基础砼并安装4根Φ12通长钢筋。25m箱梁底座设定长度25.4m,底座纵横向间距按照场站设计图布置, 底座高于场地硬化砼面38cm(含钢面板厚度)。承力混凝土座设定尺寸为92.5*50*30cm,间隔空距50cm便于穿锁脚对拉螺杆及内模上浮拉杆。箱梁底座按二次抛物线计算反拱值。检查调整预埋角钢线型、宽度、焊接点、各控制点反拱值,符合要求后焊接钢筋剪刀撑及平撑。底座墩四周侧及两端安装模板,距梁端间距60—110cm处设置可拆卸钢面板,便于穿吊装钢絲绳。模板加固后浇筑C30底座砼,砼面要抹平收浆,砼达到一定强度时用手持打磨机将砼面磨平,并用直尺检查。最后将厂家加工的钢面板按编号焊结在底座墩预埋角钢上,钢面拼结后用原子粉调合固化剂清理接缝,底座两边用强力胶粘贴4mm止浆橡胶带。



1.3、预制小箱梁模板安装
1.3.1、介于钢筋骨架整体吊装入模工艺,预制小箱梁侧模板提前与底模进行安装连接工艺,利用10t龙门吊进行节段安装与底模连接,减少了钢筋入模后再安装侧模造成局部位置模板接缝不严密、错台等现象难以调整,保证了梁体外形外观质量。
1.3.2、在设置底模时,用5号槽钢作为台座包边,角钢槽口向内,用橡胶止浆片粘贴,利用侧模紧贴止浆片有效止浆,保证了梁体下倒角的外形外观质量。侧模通过台座基础空隙处进行对拉,保证梁体结构尺寸。
1.3.3、待侧模安装完后,在对底模和侧模进行打磨,均匀涂刷专用脱模漆,减少了模板吊装时的二次污染,保证梁体外观质量。
1.3.4、箱梁内模采用模板整修架进行整体拼装、调整,利用龙门吊进行整体吊装入模。减少了以往在箱内节段拼装破坏钢筋以及自身线性等缺陷问题。准确保证了梁体结构的尺寸及内箱线性。
1.3.5、通过设计在箱梁底板泄水孔(预留直径100mmPVC管)处设拉杆将内模纵向主梁与底模连接,有效控制内模上浮。
1.3.6.在浇注混凝土前,在波纹管内穿入尼龙胶管,以保证预应力孔道完整性。
1.3.7、内模板在翼缘板倒角处设置设楔形口,与内模连接螺旋杆件相结合,便于拆卸。内模采用龙门吊配合卷扬机的方式整体拖拉出箱,外模则通过龙门吊分节拆除,减少劳动用工和减轻工人的劳动强度。
注意事项:
1、梁体钢筋验收合格后安装模型,先安装端模,然后按照高边与低边同时交错进行的顺序安装侧模,并由一端向另一端顺序吊装,每一节相对应的侧模安装好后连接下栏杆紧固件,腹板钢筋安装就位后安装内模。
2、相邻安装的两节模型,必须接缝密贴、表面平整无错台、连接紧固。
3、全部模型安装完后,以端头模型中心线为基准,检查安装桥梁模型全长和调整桥面内外侧宽度。然后逐一紧固全部的连接螺栓及拉杆,调整好侧模的垂直状态(统称“抄平”)在允许范围内。
预制小箱梁预制的钢筋绑扎根据梁场布置形式,设置钢筋绑扎区,采用胎模定位,整体对底腹板钢筋骨架和顶板钢筋骨架进行绑扎,在通过1台龙门吊进行整体吊装入模安装。
1.4.1、钢筋胎模:钢筋胎模采用50角钢与钢管制作,底板钢筋根据设计图纸,箱梁的纵横向水平筋等的分布位置,在角钢上相应位置处准确刻槽(宽度比设计钢筋直径大5mm,深度为钢筋直径的1/2倍);腹板钢筋采用在钢管上焊接钢筋头的形式布置纵向水平筋,来精确定位主筋的相对位置,确保主骨架现场绑扎安装间距误差可控,且大大减少了钢筋在台座上绑扎占用的时间。

1.4.2、钢筋保护层:钢筋保护层采用与梁体同标号穿心式圆形混凝土垫块(圆形垫块内径比钢筋直径大3mm),穿在纵向水平筋上,能够自由活动,避免安装时受模板的挤压而移位歪斜、损坏及脱落等现象,保证混凝土保护层厚度控制。

1.4.3、预应力管道定位:采用“定位网”安装法,严格按照设计给定的坐标将波纹管用“#”形定位筋进行固定,曲线段每50cm一道,直线段每80cm一道。对波纹管接头处,用长为25cm左右直径大一级的波纹管为套管,并用塑料胶布将接口缠裹严密,防止接口松动拉脱或漏浆。

1.4.4、钢筋的安装采用钢筋吊架通过钢绞线分别对底腹板和顶板钢筋进行整体吊装安装。吊架采用型钢焊接成型,在钢筋骨架纵向内穿一根钢绞线,吊钩点挂在钢绞线上,吊钩每1.5米布置一根,共计17(20)根。能有效防止因吊装对钢筋骨架产生的变形,保证骨架整体完整性。
1.4.5、桥面横向连接钢筋采用梳直板进行定位,端头及横向连接钢筋采用在外模上预留标准孔洞的方法定位,确保预埋钢筋的准确定位。
注意事项:
1、钢筋骨架的箍筋垂直;箍筋与水平筋交点处要用绑扎丝绑扎;所有的相交点均应全部绑扎。
2、钢筋安装绑扎要控制位置,保证牢固,采用镀锌铁丝,绑扎采用逐点改变绕丝方向的八字形方式交错扎接,对于直径25mm钢筋绑扎宜采用双对角线的十字形方式扎接。不得有变形或松脱现象。
3、绑扎采用混凝土垫块强度不低于混凝土设计强度(≥50Mpa),混凝土保护层满足设计要求。垫块应分散布置、相互错开,不得横贯保护层的全部截面,垫块在侧面和底面所布设的数量不少于4个/m2。
4、波纹管:金属波纹管安设时严格按照坐标位置控制,保持良好线型。波纹管接头处用长为直径大一级的波纹管为套管接好,然后用防水胶带缠裹以防接口
松动拉脱或漏浆。
1.5、预制小箱梁混凝土施工
1.5.1、混凝土浇筑方法
1、箱梁混凝土浇注由梁的一端向另一端斜向分层浇筑振捣,浇筑顺序按照先浇注底板再浇注腹板,浇注腹板时纵向分段、水平分层浇向另一端,在距梁端4-5m处,从梁的另一端布料,防止水泥浆聚集到梁端造成梁体强度不均匀。
2、为避免腹板、翼板交界处因腹板混凝土沉落而造成纵向裂纹,可在腹板砼浇注后略停一段时间后,使腹板砼充分沉落,然后再浇筑翼板。

1.5.2、混凝土振捣
1、混凝土振捣采用高频式附着式振动器为主、插入式振捣器为辅相互结合的方法。通过在侧模背肋上加焊钢板,四周根据高频式附着式振动器大小预留螺栓孔,安装高频式附着式振动器,每侧布置活动的振动器10台,间隔3米设置一台,位于腹板70cm处。
振动器的振动为间断式:每次开动20~30秒,停5秒,再开动。每层混凝土振6~7次。振动器开动的数量以灌注混凝土长度为准,不空振模板。灌注上翼板混凝土时,振捣以插入式振动器为主,随振随将混凝土面平整。灌注翼板,严禁开动附着式振动器。
2、钢束靠近模板的地方和锚垫板处钢筋密集,下料振捣都有困难,采取边下料边振捣的方法,除使用30mm插入式振动器正确振捣外,对下料空隙较小的地方采用20mm插入式振动器振捣。
1.5.3、预制小箱梁混凝土表面拉毛及凿毛
1、混凝土灌注完毕收浆前,要抹压一遍,并进行平整处理,平整时采用水平尺量测,保证梁顶砼面的平整度以及横坡度;
2、混凝土初凝时,采用钢刷子对桥面进行拉毛处理;
3、拆模后对湿接缝、横向连接接头进行凿毛处理,凿毛离混凝土边缘为3公分,采用弹墨线形式已保证凿毛边缘线性控制。
1.5.4、预制小箱梁混凝土养生
1、夏季养护采用喷淋养护方法,利用箱梁预留的湿接缝钢筋悬挂喷淋管道,接两通管对箱梁顶板、翼缘板底面及腹板进行喷淋洒水养护;箱内利用负弯矩张拉预留口悬挂喷淋管道,对箱内进行喷淋洒水养护。
2、预制小箱梁采用蒸汽养生,蒸汽养生采用专门加工的养护棚,养护棚骨架为φ28钢筋焊而成,其上覆盖防水篷布,混凝土灌注完毕后应立即盖好养护棚,用锅炉或蒸汽发生器产生蒸汽将蒸汽输送管接入养护棚内。
混凝土工程施工注意事项:
1、混凝土运输罐车到待浇梁处,混凝土采用龙门吊布料料斗均匀入模。其浇注方法采用斜向分层法浇注,根据梁高腹板砼分成 2~4 层进行浇注。振捣采用附着式振捣器和插入式振捣棒(50 棒、30棒)联合完成。
2、腹板浇注时应两侧同步进行,施工过程中,必须密切注意底板砼是否由梁体底角流出,然后决定施工是否向前推混凝土施工。
3、刷毛、梁板表面处理,当梁体顶板砼振捣完成后及时用抹子进行抹平,采用水平尺量测,保证梁顶砼面的平整度及横坡度;顶板砼初凝后、终凝前,使用钢刷进行刷毛,将梁顶的浮浆刷掉、清扫并用洁净水冲刷干净。
1.6、预制小箱梁张拉及压浆
预应力的施工主要包括锚具的准备及安装、波纹管制安、钢绞线下料及安装、预应力的张拉、封锚灌浆等。
1.6.1、张拉工艺
1、采有智能数控张拉设备进行张拉,一头两顶用一个控制箱进行控制,使两顶同步进行,有效的控制了张拉应力及伸长值的核对。
2、在张拉过程中以油表读数为主,以钢绞线的伸长值作校核,在控制应力作用下持荷5min的张拉中的“三控法”,在持荷时如发现油压下降,立即补至规定油压,并认真检查有无滑丝现象;如钢绞线伸长值偏差超过规定范围,查明原因后由技术部给出处理方案方可施工。
3、压浆工艺采用真空辅助压浆,拌浆机转速大于每分钟1000转,保证浆体的拌合质量。采用真空辅助压浆,在压浆前应首先进行抽真空,使孔道内的真空度稳定在-0.06Mpa~-0.10Mpa之间,真空度稳定后,应立即开启管道压浆端阀门,同时开启压浆泵进行连续压浆。
4、采用专用的压浆料,保证了现场施工时计量准确性及质量可控。压浆的压力宜为0.5-0.7Mpa。压浆充盈度应达到孔道另一端饱满并于排气孔排出与规定流动度的相同浆体为止。
二、安全文明施工控制及环境保护
2.1、安全文明施工控制措施
2.1.1、成立安全监督领导小组,对预制小箱梁施工过程施工安全进行有效地监督;
2.1.2、加强教育培训,做到施工人员安全教育全覆盖,到场民工及管理人必须参加教育培训后方可上岗;
2.1.3、加大宣传力度,营造重视安全氛围;
2.1.4、在施工地段合理设置安全警示标志,时刻警醒施工人员重视安全。
2.2、预制小箱梁安全文明施工注意事项
2.2.1、进入施工现场必须佩戴安全帽;
2.2.2、施工临时用电必须由专业电工拆装;
2.2.3、预制小箱梁张拉时,千斤顶后面严禁站人;
2.2.4、特种设备持证上岗,一般设备专人操控;
2.2.5、高空作业时必须佩戴安全带,穿防滑鞋;
2.2.6、易燃、易爆物品设置专门的堆放点,按要求包管。
2.3、环境保护措施
2.3.1、设置沉淀池,所有施工产生的废水,在经过沉淀池沉淀过后才能排放。
2.3.2、建筑垃圾定点堆放,不得随意乱丢、乱弃。
2.3.3、妥善保管好柴油、机油等施工用油,防止倾倒污染环境。
以上内容来源于网络收集整理,如有侵权请联系客服